Description
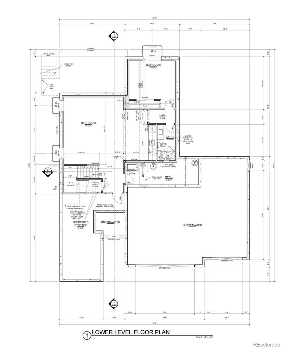
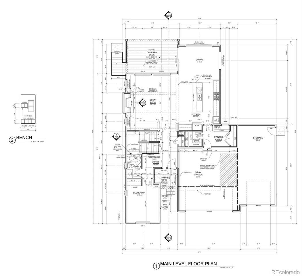
All showings MUST be set through ShowingTime to walk the property! Construction is under way. Q1 2026 delivery! Beautiful, bright, and modern 2-story home in Superior's highly desired Rock Creek Ranch community! NEW CONSTRUCTION! Sitting on a quiet drive with a beautiful garden level basement. This home boasts a private yard with beautiful views, backing to open space. The open floor plan features soaring entryways with a walnut front door, hardwood floors throughout much of the main level, and loads of natural light. Build this stunning new custom home with award-winning Sheffield Homes! The large chef's kitchen offers quartz countertops, optional stainless JennAir appliances, a gas cooktop with hood, a micro/oven combo, a huge walk-in pantry, and a massive island with an eat-up bar. A mudroom with a bag drop connects to the oversized 3-car garage, which includes one EV-ready side and another EV-capable. The sunny family room, with large windows and a modern gas fireplace, opens to the kitchen, offering informal dining options. The main level also features a 3/4 bath + bed/home office or playroom. Upstairs, find 3 spacious bedrooms, upper-level laundry, and a luxurious primary suite with fireplace, deck to capture VIEWS, dual bath vanities, a large shower, and a dual walk-in closets. The basement offers abundant storage. Energy Star 3.2-rated, a highly efficient furnace, roof, and insulation. Whisper-quiet garage door opener, with an estimated January 2026 move-in date. Landscaping is optional to be added and taxes are estimated. The outstanding community includes a pool, clubhouse, parks, trails, and more. Schools in the Boulder Valley District are highly regarded for their excellence and innovation. This home offers the best of Superior's small-town charm with easy access to Boulder, Denver, and Golden.
-
5BEDS
-
0.2ACRES
-
4BATHS
-
01/2 BATHS
-
3,481SQFT
-
$487$/SQFT
School Information
Offered by Real Broker, LLC DBA Real.Description
All showings MUST be set through ShowingTime to walk the property! Construction is under way. Q1 2026 delivery! Beautiful, bright, and modern 2-story home in Superior's highly desired Rock Creek Ranch community! NEW CONSTRUCTION! Sitting on a quiet drive with a beautiful garden level basement. This home boasts a private yard with beautiful views, backing to open space. The open floor plan features soaring entryways with a walnut front door, hardwood floors throughout much of the main level, and loads of natural light. Build this stunning new custom home with award-winning Sheffield Homes! The large chef's kitchen offers quartz countertops, optional stainless JennAir appliances, a gas cooktop with hood, a micro/oven combo, a huge walk-in pantry, and a massive island with an eat-up bar. A mudroom with a bag drop connects to the oversized 3-car garage, which includes one EV-ready side and another EV-capable. The sunny family room, with large windows and a modern gas fireplace, opens to the kitchen, offering informal dining options. The main level also features a 3/4 bath + bed/home office or playroom. Upstairs, find 3 spacious bedrooms, upper-level laundry, and a luxurious primary suite with fireplace, deck to capture VIEWS, dual bath vanities, a large shower, and a dual walk-in closets. The basement offers abundant storage. Energy Star 3.2-rated, a highly efficient furnace, roof, and insulation. Whisper-quiet garage door opener, with an estimated January 2026 move-in date. Landscaping is optional to be added and taxes are estimated. The outstanding community includes a pool, clubhouse, parks, trails, and more. Schools in the Boulder Valley District are highly regarded for their excellence and innovation. This home offers the best of Superior's small-town charm with easy access to Boulder, Denver, and Golden.
Related Properties
Based on information submitted to the MLS GRID as of 2025-12-05T00:22:48.483 (date and time MLS Grid Data was obtained). All data is obtained from various sources and may not have been verified by broker or MLS GRID. Supplied Open House information is subject to change without notice. All information should be independently reviewed and verified for accuracy. Properties may or may not be listed by the office/agent presenting the information.
© 2025 METROLIST, INC., DBA RECOLORADO® – All Rights Reserved
6455 S. Yosemite St., Suite 500
Greenwood Village, CO 80111 USA
