Description
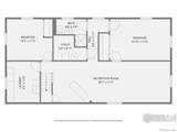
PRIDE IN OWNERSHIP! This classic brick ranch home in the heart of Eaton is fully remodeled and move-in ready! Walkable to Eaton schools. NO HOA! NEW Driveway. NEW backyard patio concrete. NEWER roof and gutters. Upgraded electrical and added can lighting throughout both floors. New Quartz countertops, fresh cabinets, sink, backsplash, and stainless steel appliances with this breakfast serve style window kitchen! Barstool seating option at breakfast serve kitchen island. LARGE pantry space. Turn the upper office space into a LARGER dining room. 2 Dining room option! Second living room or sunroom possibility off the back of the home. OVERSIZED 2 car garage with tall ceilings for storage room! NEW WOOD front door and barn doors. Newer upstairs windows! Enjoy a new main-floor primary suite with tile shower and walk-in closet. COVERED Patio (with gas line for grill), plus an extra carport and alley access. Wainscot ceiling basement. Tile laundry with folding area. Shed included. Modern comfort meets timeless charm-don't miss it!
-
4BEDS
-
0.21ACRES
-
3BATHS
-
01/2 BATHS
-
2,542SQFT
-
$188$/SQFT
School Information
Offered by Realty One Group Fourpoints CO.Description
PRIDE IN OWNERSHIP! This classic brick ranch home in the heart of Eaton is fully remodeled and move-in ready! Walkable to Eaton schools. NO HOA! NEW Driveway. NEW backyard patio concrete. NEWER roof and gutters. Upgraded electrical and added can lighting throughout both floors. New Quartz countertops, fresh cabinets, sink, backsplash, and stainless steel appliances with this breakfast serve style window kitchen! Barstool seating option at breakfast serve kitchen island. LARGE pantry space. Turn the upper office space into a LARGER dining room. 2 Dining room option! Second living room or sunroom possibility off the back of the home. OVERSIZED 2 car garage with tall ceilings for storage room! NEW WOOD front door and barn doors. Newer upstairs windows! Enjoy a new main-floor primary suite with tile shower and walk-in closet. COVERED Patio (with gas line for grill), plus an extra carport and alley access. Wainscot ceiling basement. Tile laundry with folding area. Shed included. Modern comfort meets timeless charm-don't miss it!
Based on information submitted to the MLS GRID as of 2025-11-09T00:22:42.127 (date and time MLS Grid Data was obtained). All data is obtained from various sources and may not have been verified by broker or MLS GRID. Supplied Open House information is subject to change without notice. All information should be independently reviewed and verified for accuracy. Properties may or may not be listed by the office/agent presenting the information.
© 2025 METROLIST, INC., DBA RECOLORADO® – All Rights Reserved
6455 S. Yosemite St., Suite 500
Greenwood Village, CO 80111 USA
