Description
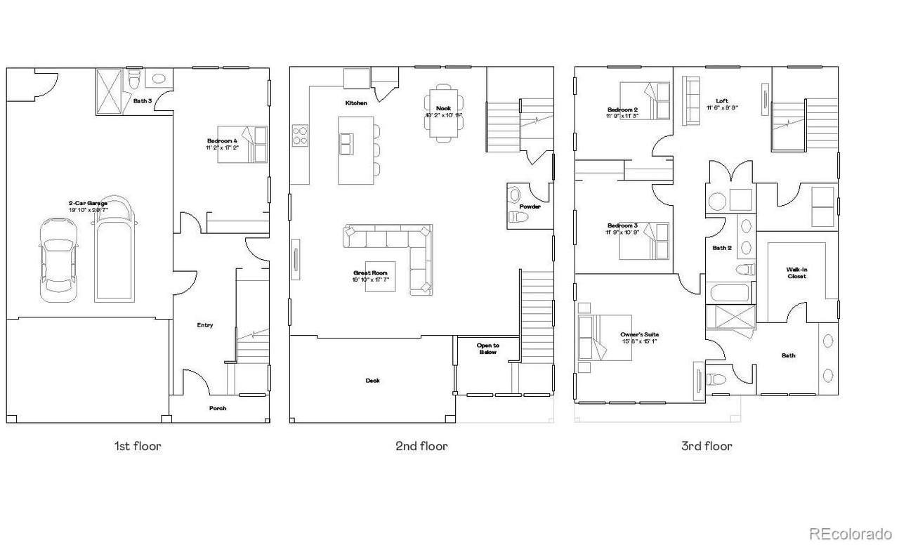
**Contact builder today about Special Financing for this home - terms and conditions apply** Anticipated Completion May 2026! Gorgeous Overlook 3-story in the brand new Vermilion community is Northeast facing and features 4 beds (3 upper / 1 lower), 3.5 baths, loft, great room, kitchen, 2.5 car garage and crawlspace. Gorgeous finishes and upgrades throughout including Quartz package, luxury vinyl plank flooring, stainless steel appliances, spacious balcony and more. The builder provides the latest in energy efficiency and state of the art technology with several fabulous floorplans to choose from. Energy efficiency, and technology/connectivity seamlessly blended with luxury to make your new house a home. Vermilion Creek offers single family homes for every lifestyle. Close to dining, shopping, entertainment and other amenities. Photos are model only and subject to change. Finishes subject to change. Private Fencing included with this home. Adjacent to community green area. Enjoy easy access to Tagawa Gardens, nearby Trails and Cherry Creek schools.
-
4BEDS
-
0.06ACRES
-
3BATHS
-
11/2 BATHS
-
2,581SQFT
-
$281$/SQFT
School Information
Offered by RE/MAX Professionals.Description
**Contact builder today about Special Financing for this home - terms and conditions apply** Anticipated Completion May 2026! Gorgeous Overlook 3-story in the brand new Vermilion community is Northeast facing and features 4 beds (3 upper / 1 lower), 3.5 baths, loft, great room, kitchen, 2.5 car garage and crawlspace. Gorgeous finishes and upgrades throughout including Quartz package, luxury vinyl plank flooring, stainless steel appliances, spacious balcony and more. The builder provides the latest in energy efficiency and state of the art technology with several fabulous floorplans to choose from. Energy efficiency, and technology/connectivity seamlessly blended with luxury to make your new house a home. Vermilion Creek offers single family homes for every lifestyle. Close to dining, shopping, entertainment and other amenities. Photos are model only and subject to change. Finishes subject to change. Private Fencing included with this home. Adjacent to community green area. Enjoy easy access to Tagawa Gardens, nearby Trails and Cherry Creek schools.
Based on information submitted to the MLS GRID as of 2026-03-07T00:22:55.34 (date and time MLS Grid Data was obtained). All data is obtained from various sources and may not have been verified by broker or MLS GRID. Supplied Open House information is subject to change without notice. All information should be independently reviewed and verified for accuracy. Properties may or may not be listed by the office/agent presenting the information.
© 2026 METROLIST, INC., DBA RECOLORADO® – All Rights Reserved
6455 S. Yosemite St., Suite 500
Greenwood Village, CO 80111 USA
